02.

House Dumbo

Vivienda desarrollada en 2 niveles, diseño modernos y minimalista. centrado en la utilización de materiales contemporáneos como hormigón visto, revestimientos de PVC, doble vidrio y porcelanatos de 1er. calidad.


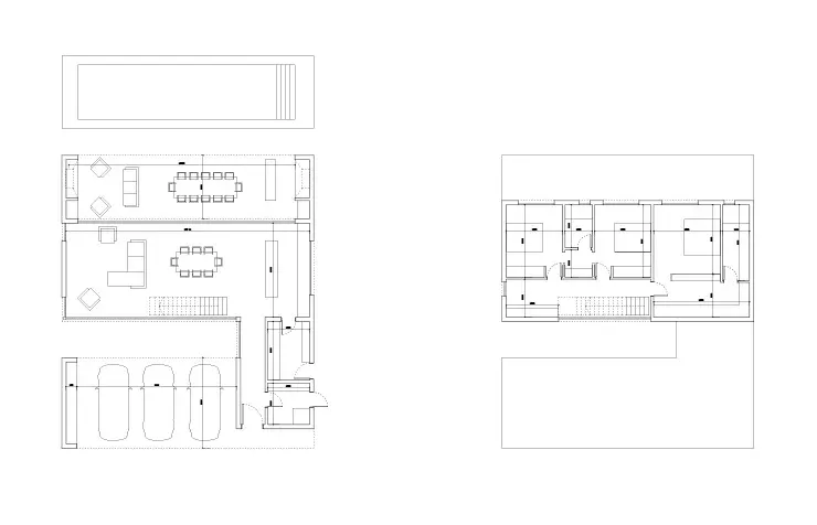
Planos


Especificaciones técnicas

Gas: Para picos de calderas, anafe y parrilla.

Termomecánica: Preinstalación AA individual tipo Split Frío/Calor, en todos los ambientes, con cañerías de drenaje, alimentación y retorno.

Calefacción: Por piso radiante vía caldera dual.

Eléctrica: cañerías, cajas y cableado para bocas y circuitos según proyecto, de acuerdo con reglamentación vigente del ENRE.

Puerta acceso de chapa n16 c/herrajes.

Puertas placa interiores a medida c/herrajes.

Ventanas de aluminio negro mate, A40 con dvh.

Muebles de cocina, baño y lavadero de melanina EGGER color negro mate.

Mesadas de silestone negro absoluto.

Griferías FV

Artefactos Roca GAP

Tendido cableado de alarmas y cámaras de seguridad.

Revestimientos exteriores en WPC, según proyecto.

Luminaria interior embutida en losa anti deslumbrante y luminarias tiras led exteriores.

Piscina: de 4x8m equipada, con 3 luces pool led y solárium.

Solados y revestimientos: Porcelanato Cerro Negro London Grey 60cm x 120cm.


Contacto

NOMBRE COMPLETO

E-MAIL

TELÉFONO

INTERÉS